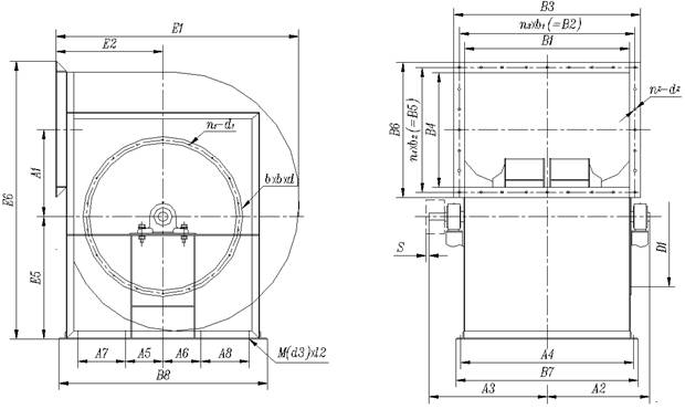
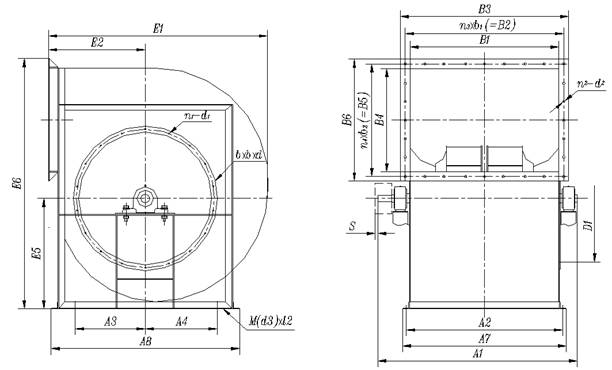
No.2×5E~2×8E離心通風機外形及安裝尺寸表 |
機號No. | 進風口尺寸 | 出風口尺寸 | D1 | b×b×d | n1-d1 | B1 | B2 | B3 | B4 | B5 | B6 | n2- d2 | n3×b1 | n4×b2 | 5 | Φ620 | 40×40×4 | 24-Φ12 | 742 | 792 | 828 | 536 | 585 | 622 | 28-Φ10 | 8×99 | 6×97.5 | 6 | Φ710 | 40×40×4 | 24-Φ12 | 884 | 936 | 976 | 644 | 690 | 730 | 30-Φ10 | 9×104 | 6×115 | 7 | Φ800 | 40×40×4 | 24-Φ12 | 1010 | 1062 | 1096 | 752 | 805 | 838 | 32-Φ10 | 9×118 | 7×115 | 8 | Φ910 | 40×40×4 | 24-Φ12 | 1150 | 1197 | 1236 | 860 | 910 | 946 | 32-Φ10 | 9×133 | 7×130 |
|
|
機號No. | 安裝及外形尺寸 | A1 | A2 | A3 | A4 | A5 | A6 | A7 | A8 | A9 | E1 | E2 | E3 | E4 | E5 | E6 | 5 | 1147 | 820 | 210 | 250 | 250 | 280 | 874 | 760 | 790 | 894 | 450 | 504 | 586 | 457 | 1043 | 6 | 1200 | 979 | 268 | 300 | 290 | 330 | 1016 | 868 | 920 | 1072 | 468 | 604 | 695 | 541 | 1236 | 7 | 1430 | 1098 | 305 | 370 | 330 | 400 | 1142 | 1005 | 1012 | 1261 | 546 | 715 | 804 | 631 | 1435 | 8 | 1587 | 1232 | 368 | 415 | 390 | 471 | 1282 | 1114 | 1160 | 1440 | 624 | 816 | 914 | 715 | 1629 |
|
|
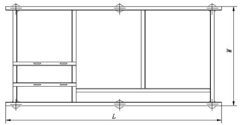
機號No. | 安裝及外形尺寸 | 葉輪重/kg | 風機重(不包括電動機)/kg | E7 | E8 | E9 | E10 | E11 | L | W | M(d3)×l2 | 5 | 1008 | 929 | 1043 | 539 | 611 | 2270 | 1080 | M16×400 | 70 | 200 | 6 | 1201 | 1107 | 1236 | 639 | 720 | 2400 | 1230 | M16×400 | 115 | 370 | 7 | 1405 | 1291 | 1435 | 745 | 834 | 2540 | 1390 | M16×400 | 142 | 650 | 8 | 1599 | 1470 | 1629 | 846 | 944 | 2660 | 1550 | M16×400 | 174 | 770 |
|
|
No.2×10E~2×20E離心通風機外形及安裝尺寸圖 |
 |
 |
 |
|
No.2×10E~2×20E離心通風機外形及安裝尺寸表 |
機號No. | 進風口尺寸 | 出風口尺寸 | D1 | b×b×d | n1-d1 | B1 | B2 | B3 | B4 | B5 | B6 | n2- d2 | n3×b1 | n4×b2 | 10 | Φ1140 | 50×50×5 | 16-Φ15 | 1419 | 1474 | 1519 | 1083 | 1136 | 1183 | 38-Φ12 | 11×134 | 8×142 | 12 | Φ1340 | 50×50×5 | 20-Φ15 | 1743 | 1794 | 1843 | 1300 | 1360 | 1400 | 46-Φ12 | 13×138 | 10×136 | 14 | Φ1580 | 63×63×6 | 24-Φ15 | 2044 | 2100 | 2170 | 1516 | 1573 | 1642 | 52-Φ12 | 15×140 | 11×143 | 16 | Φ1780 | 63×63×6 | 24-Φ15 | 2332 | 2394 | 1458 | 1733 | 1788 | 1859 | 60-Φ12 | 18×133 | 12×149 | 18 | Φ1996 | 63×63×6 | 26-Φ15 | 2623 | 2698 | 1749 | 1949 | 2016 | 2075 | 66-Φ12 | 19×142 | 14×144 | 20 | Φ2206 | 63×63×6 | 26-Φ15 | 2909 | 2980 | 3059 | 2166 | 2240 | 2315 | 62-Φ12 | 20×149 | 16×140 |
|
|
機號No. | 安裝及外形尺寸 | A1 | A2 | A3 | A4 | A5 | A6 | A7 | A8 | A9 | A10 | A11 | A12 | B7 | B8 | B9 | E1 | E2 | 10 | 551 | 841 | 1067 | 1509 | 192 | 268 | 370 | 370 | 150 | 290 | 400 | 400 | 1569 | 1516 | 1606 | 1797 | 780 | 12 | 660 | 1002 | 1230 | 1833 | 190 | 270 | 500 | 500 | 160 | 340 | 500 | 500 | 1893 | 1774 | 1880 | 2154 | 936 | 14 | 771 | 1192 | 1478 | 2144 | 305 | 395 | 500 | 500 | 160 | 440 | 600 | 600 | 2224 | 2068 | 2230 | 2565 | 1092 | 16 | 880 | 1332 | 1626 | 2432 | 315 | 405 | 600 | 600 | 175 | 525 | 700 | 700 | 2512 | 2322 | 2510 | 2722 | 1248 | 18 | 991 | 1523 | 1824 | 2763 | 350 | 450 | 700 | 700 | 160 | 540 | 800 | 800 | 2873 | 2656 | 2826 | 3280 | 1404 | 20 | 1101 | 1660 | 1972 | 3049 | 410 | 490 | 800 | 800 | 220 | 630 | 850 | 850 | 3159 | 2890 | 3100 | 3649 | 1560 |
|
|
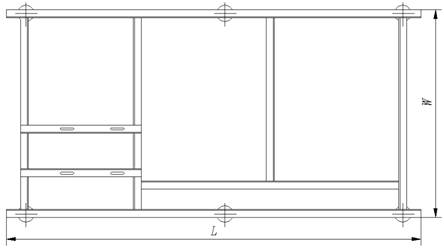
機號No. | 安裝及外形尺寸 | 葉輪重
(kg) | 風機重(不包括電動機)/kg | E3 | E4 | E5 | E6 | E7 | E8 | E9 | E10 | E11 | L | W | M(d3)×l2 | 10 | 1017 | 1142 | 894 | 2036 | 1996 | 1837 | 2046 | 1057 | 1192 | 3080 | 1800 | M16×400 | 472 | 1346 | 12 | 1218 | 1360 | 1063 | 2423 | 2383 | 2194 | 2443 | 1258 | 1420 | 3300 | 2170 | M16×400 | 619 | 1606 | 14 | 1473 | 1592 | 1232 | 2824 | 2837 | 2552 | 2851 | 1460 | 1659 | 4230 | 2600 | M24×630 | 1238 | 2942 | 16 | 1674 | 1810 | 1400 | 3210 | 3223 | 2909 | 3237 | 1661 | 1877 | 4600 | 3140 | M24×630 | 1474 | 3866 | 18 | 1876 | 2029 | 1579 | 3608 | 3611 | 3277 | 3645 | 1873 | 2116 | 5000 | 3490 | M30×800 | 2274 | 5421 | 20 | 2089 | 2259 | 1748 | 4007 | 4032 | 3634 | 4044 | 2074 | 2334 | 5300 | 3860 | M30×800 | 2686 | 6148 |
|